Menu
Un projet réalisé par :TEXIER & SOULAS ARCHITECTES  Architecte à Paris

Appartement, quai Louis Blériot

 Paris - 75
TEXIER & SOULAS ARCHITECTES
Accueil Projets Appartement, quai Louis Blériot

Appartement, quai Louis Blériot - Paris (75)

Surface: 80 m2
Coût: 100 000€ HT
Livraison: Février 2006

Appartement, quai Louis Blériot

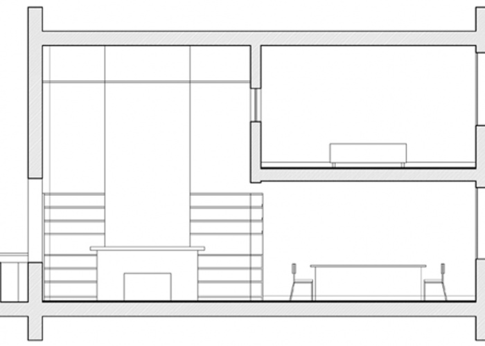
Les travaux de rénovation ont permis de mettre en valeur les volumes existants et la vue sur la Seine de cet appartement en duplex. A l’étage, l’espace chambre-salle de bains a été entièrement réorganisé. Au niveau bas, un percement et un réagencement complet ont permis d’optimiser le manque de surface de la cuisine et sa relation aux autres pièces. Une bibliothèque intègre le conduit de cheminée et crée en se retournant une séparation entre la salle à manger et le séjour. Les grandes verrières d’une hauteur de 6m, ouvrant sur la Seine, ont été entièrement remplacées par de nouvelles menuiseries (aux normes d’isolation actuelles) en accord avec les Architectes des Bâtiments de France.

© Photo, agence Texier&Soulas

  • Appartement, quai Louis Blériot : image_projet_mini_3831
  • Appartement, quai Louis Blériot : vue de haut01web
  • Appartement, quai Louis Blériot : coupeweb
  • Appartement, quai Louis Blériot : menuiserie02web
  • Appartement, quai Louis Blériot : details cuisine02web
  • Appartement, quai Louis Blériot : details sdb03web

Trouvez un architecte pour votre projet

Protection de vos données personnelles

Depuis toujours, architectes-france.com ne transfère aucune donnée personnelle à d'autres acteurs que ceux directement concernés par le projet (architectes, architectes d'intérieur...) et qui appartiennent à son réseau. Nos listes ne sont jamais transmises ou vendues à des partenaires extérieurs, même si ceux-ci appartiennent au domaine de la construction.
Toute modification dans ce domaine ne serait effectuée qu'avec votre consentement.

Je consens à ce que mes données personnelles soient collectées pour permettre à architectes-france de transférer votre projet aux architectes. Seul Architectes-france, ses équipes internes et la maitrise d'oeuvre concernée par le projet y ont accès. Aucune transmission de données à des tiers à l'exclusion de ceux décrits ci dessus n'est réalisée.

Mes données téléphoniques seront uniquement utilisées par Architectes-france.com et les architectes de notre réseau dans le cadre de la qualification et du suivi de mon projet.

Les données sont conservées pendant une durée de 18 mois courant à partir des derniers contacts effectifs entre architectes-france et vous ou architectes-france et un membre de la maitrise d'oeuvre en rapport avec ce projet et qui serait en relation avec architectes-france.

Conformément à la loi « informatique et libertés », vous pouvez exercer votre droit d'accès aux données vous concernant et les faire rectifier en contactant : Architectes-france, 23 avenue du Mirail - parc du Mirail - 33370 Artigues-près Bordeaux. Tél. 05.47.74.51.01 - contact@architectes-france.com

Trouvez un architecte pour votre projet

Protection de vos données personnelles

Depuis toujours, architectes-france.com ne transfère aucune donnée personnelle à d'autres acteurs que ceux directement concernés par le projet (architectes, architectes d'intérieur...) et qui appartiennent à son réseau. Nos listes ne sont jamais transmises ou vendues à des partenaires extérieurs, même si ceux-ci appartiennent au domaine de la construction.
Toute modification dans ce domaine ne serait effectuée qu'avec votre consentement.

Je consens à ce que mes données personnelles soient collectées pour permettre à architectes-france de transférer votre projet aux architectes. Seul Architectes-france, ses équipes internes et la maitrise d'oeuvre concernée par le projet y ont accès. Aucune transmission de données à des tiers à l'exclusion de ceux décrits ci dessus n'est réalisée.

Mes données téléphoniques seront uniquement utilisées par Architectes-france.com et les architectes de notre réseau dans le cadre de la qualification et du suivi de mon projet.

Les données sont conservées pendant une durée de 18 mois courant à partir des derniers contacts effectifs entre architectes-france et vous ou architectes-france et un membre de la maitrise d'oeuvre en rapport avec ce projet et qui serait en relation avec architectes-france.

Conformément à la loi « informatique et libertés », vous pouvez exercer votre droit d'accès aux données vous concernant et les faire rectifier en contactant : Architectes-france, 23 avenue du Mirail - parc du Mirail - 33370 Artigues-près Bordeaux. Tél. 05.47.74.51.01 - contact@architectes-france.com