
Construction d'une maison individuelle LABEL BBC à WIWERSHEIM (67)
Wiwersheim - 67PROJET OBTENU VIA LE SITE ARCHITECTE-FRANCE.COM
Construction d'une maison individuelle dans un lotissement à Wiwersheim (67) respectant la réglementation Bâtiment Basse Consommation. LABELLISATION BBC EN COURS.
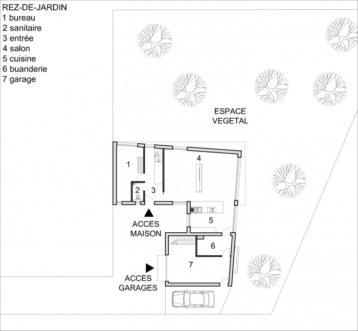
La contrainte principale de ce projet étant l'exiguïté de sa parcelle et son unique accès depuis la rue nouvelle créée, l'implantation du bâtiment se fait en équerre dans l'angle Nord-Est de la parcelle.
Ce choix d'implantation permet de limiter l'emprise des accès piétons et automobiles sur la parcelle pour offrir un maximum de surfaces végétalisées à l'arrière de la maison.
Les accès à la maison sont centralisés en partie arrière par rapport à la rue des vergers.
En partie haute, il mène à un emplacement de stationnement non couvert et au garage.
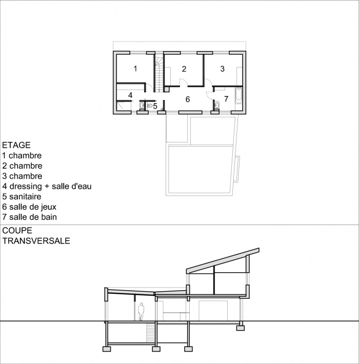
La maison est composée en deux strates traitées de manières différentes en terme de matérialité. Le rez-de-chaussée est réalisé en maçonneries avec un complexe isolant rapporté et un enduit de façade teinté. L'étage est réalisé en mur d'ossature bois avec bardage en fibre ciment rapporté.
Le volume principale de l'étage s'oriente vers le Sud pour bénéficier des apports solaires important.