
Création d'un loft dans des combles à STRASBOURG (67)
Strasbourg - 67Ce projet concerne la transformation d'anciennes chambres de bonnes en un loft dans les combles un bâtiment de 1904 classé "monument historique".
Architecte associé : VIEILLARD Marion
Maître d'ouvrage : Privé
Budget : 130 000 €
SU neuf : 120 m² au sol
Calendrier : Livraison en 2009
Le projet s'implante dans un bâtiment existant situé en centre ville de Strasbourg.
Le bâtiment existant date de 1904 et possède de grandes qualités esthétiques, par son ornementation proche du style de l'école de Nancy.
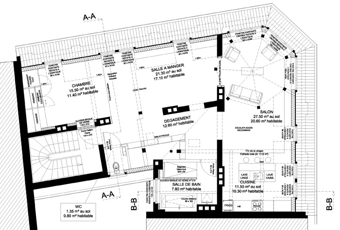
L'aménagement a permi de libérer au maximum les cloisons séparatives actuelles afin de permettre un lien entre tous les espaces de la future habitation. Ce lien s'organise de part et d'autre de l'élément majeur, la toiture en arc à 7 pans dont la charpente qui est mise en valeur, et devient le futur salon.
L'ensemble des pièces d'eau (Sanitaires, Salle de Bain, Cuisine) sont regroupées sur la partie Sud Ouest où se trouve l'ensemble des arrivées d'eau et des évacuations.
Cette solution permet d'éviter un cloisonnement trop important du plateau proposé, et propose ainsi une mise en lumière plus en profondeur bénéfique notamment à la circulation centrale.
Le plateau est doté de nombreuses fenêtres existantes, qui ont été déposées et refaites à l'identique, et qui apportent une lumière suffisante pour l'ensemble des locaux. Il n'a donc pas été ajouté d'ouvertures.
Cette démarche, à la demande du client soucieux de conserver le patrimoine, a été demandée aux entreprises lors de l'appel d'offre avant travaux.
-
-
VUE DE LA FACADE DEPUIS LA RUE
-
-
-
MISES EN PEINTURE
-
-
PLAN PROJETE