
Maison Asnières
Réhabilitation et réaménagement d'une maison à Asnières
Etude août-septembre 2010
Chantier novembre 2010
Projet en deux parties,
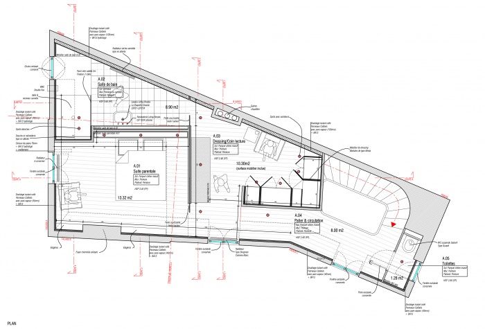
Réaménager et rénover la totalité du dernier étage, que nous transformons en suite parentale (chambre, salle de bain, dressing et sanitaire) afin de déposer la totalité du faux plafond existant et permettre une isolation correcte de toute la toiture (amélioration du confort thermique et hygrométrique (VMC))
L'organisation de cette chambre permet un maximum de flexibilité pour les deux occupants, la chambre n'est pas dépendante du dressing et de la salle de bain.
En même temps, nous lançons le ravalement de toutes les façades (réparation, traitement des fissures, étanchéité, décapage, peinture) de 190m2
-
-
3D étude
-
3D étude
-
Plan projet
Plan étude