
Maison - Atelier
Le projet s’inscrit dans un site boisé à environ 50km de Paris, à la lisière de
la forêt domaniale de Rambouillet, à la sortie de la commune de Saint-Léger
en Yvelines. Ce terrain est situé dans une zone artisanale (à destination mixte: habitation et locaux d’activité de serrurerie).
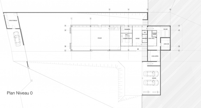
Le projet développe ainsi un seul et même volume comprenant ces deux types
d’espaces. À l’image de la grange attenante à la forêt, ce bâtiment s’inscrit dans la longueur de la parcelle, permettant à l’extrémité Ouest, côté rue, un accès direct à la partie atelier professionnel tandis qu’à l’extrémité Est, le salon de la
maison se trouve au plus proche de la masse végétale. Cette division est
aussi appliquée au terrain: la cours, au niveau de l’atelier, le jardin, au
niveau de la maison. Le volume, bardé de pin maritime posé verticalement, avec couvres-joint, recouvre l’ensemble de la charpente métallique. La longue façade nord (30m), attenante à la parcelle constructible est aveugle. Elle est constituée, à l’intérieur, par un mur épais de 50cm constituant des rangements pour l’ensemble des pièces qu’il dessert. Le pignon Ouest, en bois, appartenant à l’atelier, a une
unique porte de grande dimension. A l’inverse, les façades Sud et Est de la maison sont entièrement vitrées, protégées par des volets orientables
selon la position du soleil. L’atelier est un volume simple. Un rez-de-chaussée où sont entreposés les machines et établis. A l’étage, y sont aménagés un espace de stockage, vestiaire et atelier de peinture. Le partie pris de l’espace habitation est de pouvoir visualiser la forêt depuis la majorité des pièces. Pour
cela, les pièces sont une succession de gradins à différentes altimétries. Ainsi, depuis l’entrée, après le passage dans la double peau, jusqu’à la chambre parentale, les regards sont rivés sur le contexte boisé.