Menu
Un projet réalisé par :Atelier Grange Architecture  Architecte à Cachan

Réhabilitation lourde d'une maison individuelle

 Cachan - 94
Atelier Grange Architecture
Accueil Projets Réhabilitation lourde d'une maison individuelle

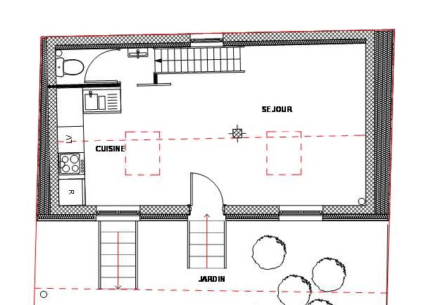
Le programme était de réhabiliter d’une petite maison de 27 m2 sur un terrain de 100 m2 en gagnant la plus grande surface habitable possible.

Réhabilitation lourde d'une maison individuelle

En creusant le sol de sous sol nous avons pu rendre celui-ci habitable en y logeant une chambre, une salle de bain et un local rangement.
Au RDC nous avons déposé le faux plafond ainsi nous avons pu y loger un séjour, un cuisine, un WC en partie basse et une chambre d’ami ou bureau sur la mezzanine.
Le garde corps a été conçu par une étagère en medium.

La maison est isolée par une isolation thermique à l’extérieur et protégée par un bardage en panneaux composites.

La surface totale de la maison est passée ainsi de 27 à 60 m2.

  • Réhabilitation lourde d'une maison individuelle : image_projet_mini_87182
  • Réhabilitation lourde d'une maison individuelle : vue depuis la rue
  • Réhabilitation lourde d'une maison individuelle : portail avant travaux
  • Réhabilitation lourde d'une maison individuelle : portail aprés travaux
  • Réhabilitation lourde d'une maison individuelle : plan sous sol
  • Réhabilitation lourde d'une maison individuelle : plan RDC
  • Réhabilitation lourde d'une maison individuelle : plan mezzanine
  • Réhabilitation lourde d'une maison individuelle : coupe longitudinale
  • Réhabilitation lourde d'une maison individuelle : coupe transversale
  • Réhabilitation lourde d'une maison individuelle : Facade

Trouvez un architecte pour votre projet

Protection de vos données personnelles

Depuis toujours, architectes-france.com ne transfère aucune donnée personnelle à d'autres acteurs que ceux directement concernés par le projet (architectes, architectes d'intérieur...) et qui appartiennent à son réseau. Nos listes ne sont jamais transmises ou vendues à des partenaires extérieurs, même si ceux-ci appartiennent au domaine de la construction.
Toute modification dans ce domaine ne serait effectuée qu'avec votre consentement.

Je consens à ce que mes données personnelles soient collectées pour permettre à architectes-france de transférer votre projet aux architectes. Seul Architectes-france, ses équipes internes et la maitrise d'oeuvre concernée par le projet y ont accès. Aucune transmission de données à des tiers à l'exclusion de ceux décrits ci dessus n'est réalisée.

Mes données téléphoniques seront uniquement utilisées par Architectes-france.com et les architectes de notre réseau dans le cadre de la qualification et du suivi de mon projet.

Les données sont conservées pendant une durée de 18 mois courant à partir des derniers contacts effectifs entre architectes-france et vous ou architectes-france et un membre de la maitrise d'oeuvre en rapport avec ce projet et qui serait en relation avec architectes-france.

Conformément à la loi « informatique et libertés », vous pouvez exercer votre droit d'accès aux données vous concernant et les faire rectifier en contactant : Architectes-france, 23 avenue du Mirail - parc du Mirail - 33370 Artigues-près Bordeaux. Tél. 05.47.74.51.01 - contact@architectes-france.com

Trouvez un architecte pour votre projet

Protection de vos données personnelles

Depuis toujours, architectes-france.com ne transfère aucune donnée personnelle à d'autres acteurs que ceux directement concernés par le projet (architectes, architectes d'intérieur...) et qui appartiennent à son réseau. Nos listes ne sont jamais transmises ou vendues à des partenaires extérieurs, même si ceux-ci appartiennent au domaine de la construction.
Toute modification dans ce domaine ne serait effectuée qu'avec votre consentement.

Je consens à ce que mes données personnelles soient collectées pour permettre à architectes-france de transférer votre projet aux architectes. Seul Architectes-france, ses équipes internes et la maitrise d'oeuvre concernée par le projet y ont accès. Aucune transmission de données à des tiers à l'exclusion de ceux décrits ci dessus n'est réalisée.

Mes données téléphoniques seront uniquement utilisées par Architectes-france.com et les architectes de notre réseau dans le cadre de la qualification et du suivi de mon projet.

Les données sont conservées pendant une durée de 18 mois courant à partir des derniers contacts effectifs entre architectes-france et vous ou architectes-france et un membre de la maitrise d'oeuvre en rapport avec ce projet et qui serait en relation avec architectes-france.

Conformément à la loi « informatique et libertés », vous pouvez exercer votre droit d'accès aux données vous concernant et les faire rectifier en contactant : Architectes-france, 23 avenue du Mirail - parc du Mirail - 33370 Artigues-près Bordeaux. Tél. 05.47.74.51.01 - contact@architectes-france.com