Menu
Un projet réalisé par :Antoine Contamin  Architecte à Audresselles

Résidence secondaire en bord de mer

 Audresselles - 62
Antoine Contamin
Accueil Projets Résidence secondaire en bord de mer

Maison de 4/5 chambres sur deux étages + mezzanine, d'une surface de 135 m2 + garage 20 m2 + terrasse (pergola) et balcon couverts.
Conforme à la RT 2012 (Bbio de 68 points et Cep de 57 kWh/m2.an)

Résidence secondaire en bord de mer

Objectifs du maître d'ouvrage :
- Deux étages autonomes avec accès indépendant (un pour le propriétaire et l'autre pour accueillir ses invités, le prêter à des associations ou éventuellement le louer);
- Des espaces ouverts et flexibles dans leur utilisation;
- Un volume de rangement important;
- Une vue maximale sur la mer;
- Un espace extérieur protégé du vent;
- Un espace de stationnement extérieur et un garage/atelier.

La maison est située en bord de mer. Elle est conçue en deux étages indépendants, qui disposent chacun d'un accès direct depuis le jardin, d'un espace extérieur, et sont chauffés de façon autonome, ce qui réduit considérablement les consommation énergétiques réelles :
- le rez-de-chaussée est semi-enterré et ouvert sur une cour, à l'est, protégée du vent et partiellement couverte par une pergola ; il abrite deux chambres, une salle de bains ainsi qu'une grande pièce équipée d'une kitchenette et pouvant être recoupée par une paroi japonaise pour obtenir une chambre supplémentaire;
- l'étage est largement ouvert sur la mer, à l'ouest, et il se prolonge par un grand balcon panoramique (couvert pour le protéger de la pluie et du soleil d'été et fermé sur ses côtés pour le protéger du vent) ; il offre un appartement confortable pour une personne seule, avec chambre et salle d'eau, WC, et cuisine ouverte sur le séjour.

la mezzanine a été ajoutée en cours de projet et constitue un espace supplémentaire dédié à la prière (le client est prêtre).

  • Résidence secondaire en bord de mer : image_projet_mini_82491

    Contraste entre le niveau bas semi-enterré et l'étage projeté vers la mer par un balcon vitré

  • Résidence secondaire en bord de mer : Vue intérieure

    Vue du salon et du balcon depuis l'escalier menant à la mezzanine

  • Résidence secondaire en bord de mer : Grande pièce du rez-de-chaussée

    Ouverte

  • Résidence secondaire en bord de mer : Grande pièce du rez-de-chaussée

    ou redivisée pour servir de chambre supplémentaire

  • Résidence secondaire en bord de mer : Grande pièce du rez-de-chaussée

    et ouvert sur l'entrée

  • Résidence secondaire en bord de mer : vue de l'étage

    en chantier

  • Résidence secondaire en bord de mer : Schéma

    jeu de sas entre les deux étages, avec accès à la buanderie sous l'escalier

  • Résidence secondaire en bord de mer : coupe transversale

    L'asymètrie de la toiture provoque la projection vers la mer

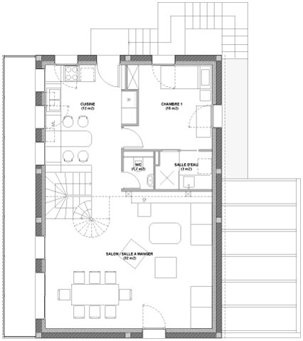
  • Résidence secondaire en bord de mer : plan du niveau bas

    L'étage des invités, avec deux ou trois chambres et un espace séjour avec kitchenette, ouvrant sur la pergola

Trouvez un architecte pour votre projet

Protection de vos données personnelles

Depuis toujours, architectes-france.com ne transfère aucune donnée personnelle à d'autres acteurs que ceux directement concernés par le projet (architectes, architectes d'intérieur...) et qui appartiennent à son réseau. Nos listes ne sont jamais transmises ou vendues à des partenaires extérieurs, même si ceux-ci appartiennent au domaine de la construction.
Toute modification dans ce domaine ne serait effectuée qu'avec votre consentement.

Je consens à ce que mes données personnelles soient collectées pour permettre à architectes-france de transférer votre projet aux architectes. Seul Architectes-france, ses équipes internes et la maitrise d'oeuvre concernée par le projet y ont accès. Aucune transmission de données à des tiers à l'exclusion de ceux décrits ci dessus n'est réalisée.

Mes données téléphoniques seront uniquement utilisées par Architectes-france.com et les architectes de notre réseau dans le cadre de la qualification et du suivi de mon projet.

Les données sont conservées pendant une durée de 18 mois courant à partir des derniers contacts effectifs entre architectes-france et vous ou architectes-france et un membre de la maitrise d'oeuvre en rapport avec ce projet et qui serait en relation avec architectes-france.

Conformément à la loi « informatique et libertés », vous pouvez exercer votre droit d'accès aux données vous concernant et les faire rectifier en contactant : Architectes-france, 23 avenue du Mirail - parc du Mirail - 33370 Artigues-près Bordeaux. Tél. 05.47.74.51.01 - contact@architectes-france.com

Trouvez un architecte pour votre projet

Protection de vos données personnelles

Depuis toujours, architectes-france.com ne transfère aucune donnée personnelle à d'autres acteurs que ceux directement concernés par le projet (architectes, architectes d'intérieur...) et qui appartiennent à son réseau. Nos listes ne sont jamais transmises ou vendues à des partenaires extérieurs, même si ceux-ci appartiennent au domaine de la construction.
Toute modification dans ce domaine ne serait effectuée qu'avec votre consentement.

Je consens à ce que mes données personnelles soient collectées pour permettre à architectes-france de transférer votre projet aux architectes. Seul Architectes-france, ses équipes internes et la maitrise d'oeuvre concernée par le projet y ont accès. Aucune transmission de données à des tiers à l'exclusion de ceux décrits ci dessus n'est réalisée.

Mes données téléphoniques seront uniquement utilisées par Architectes-france.com et les architectes de notre réseau dans le cadre de la qualification et du suivi de mon projet.

Les données sont conservées pendant une durée de 18 mois courant à partir des derniers contacts effectifs entre architectes-france et vous ou architectes-france et un membre de la maitrise d'oeuvre en rapport avec ce projet et qui serait en relation avec architectes-france.

Conformément à la loi « informatique et libertés », vous pouvez exercer votre droit d'accès aux données vous concernant et les faire rectifier en contactant : Architectes-france, 23 avenue du Mirail - parc du Mirail - 33370 Artigues-près Bordeaux. Tél. 05.47.74.51.01 - contact@architectes-france.com